
|
■ ■ ■ ■ ■ 楽しくコミュニケーションできる庭 ■ ■ ■ ■ ■ |
|
▼イメージパース▼ |
|
|
| ■設計者コメント |
|
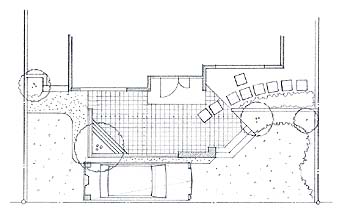
このプランは小さなタウンハウスを想定しています。フロントガーデンですが、車を3台駐車させなければいけません。こんな時玄関がテラスになり、その玄関(テラス)が井戸端会議場的な場所になり、コミュニケーション・エンジョイのステージになります。おもいっきり近所付き合いが出来ます。迎えるほうも、おとづれるほうもワクワクします。明るい声が絶え間なく聞こえる家になるでしょう。車が出て行った後はコンテナーガーデンに変えては・・・花いっぱいの駐車場はご近所の話題になることでしょう。 |
|
▼平面図▼ |
|
|
| [戻る] |